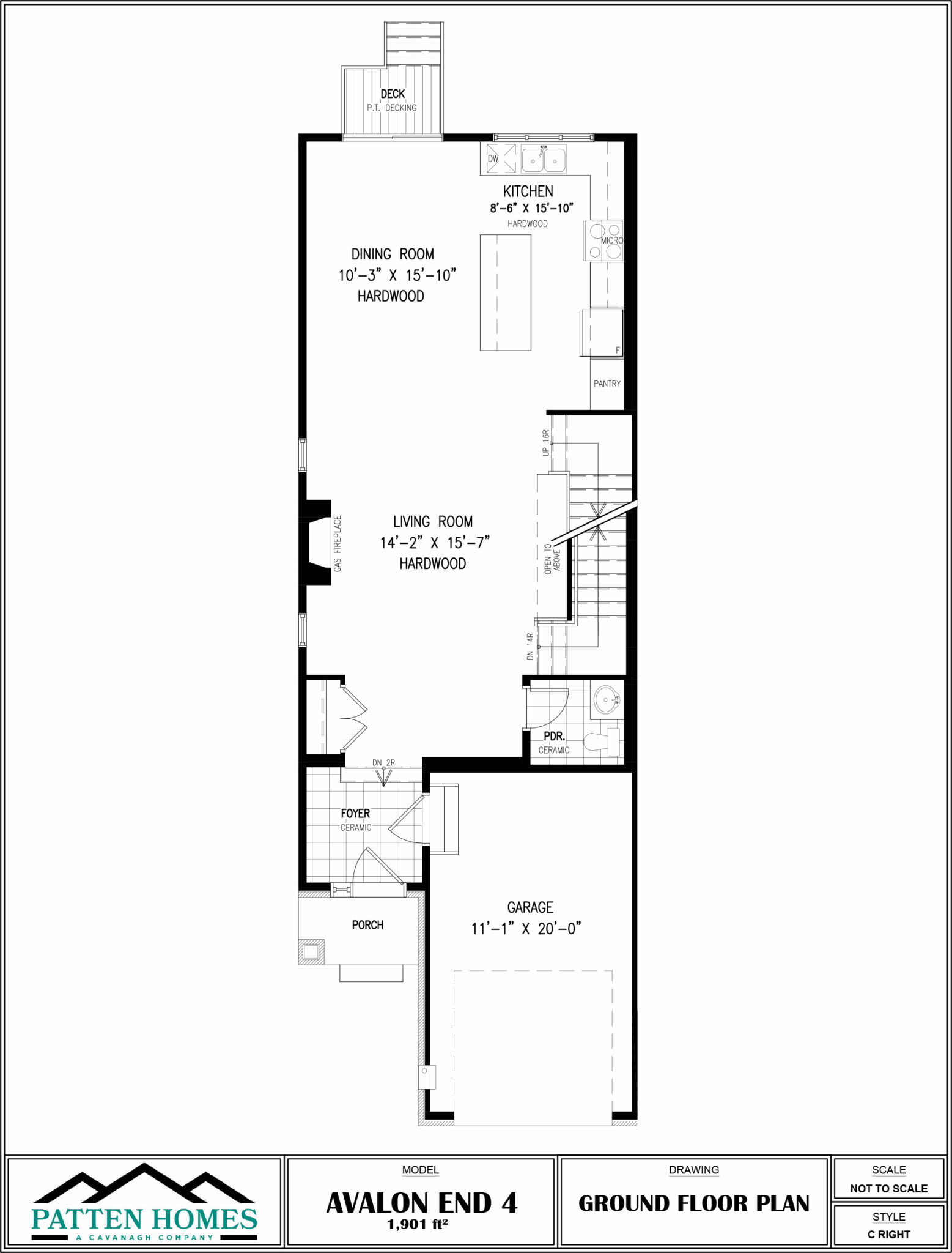
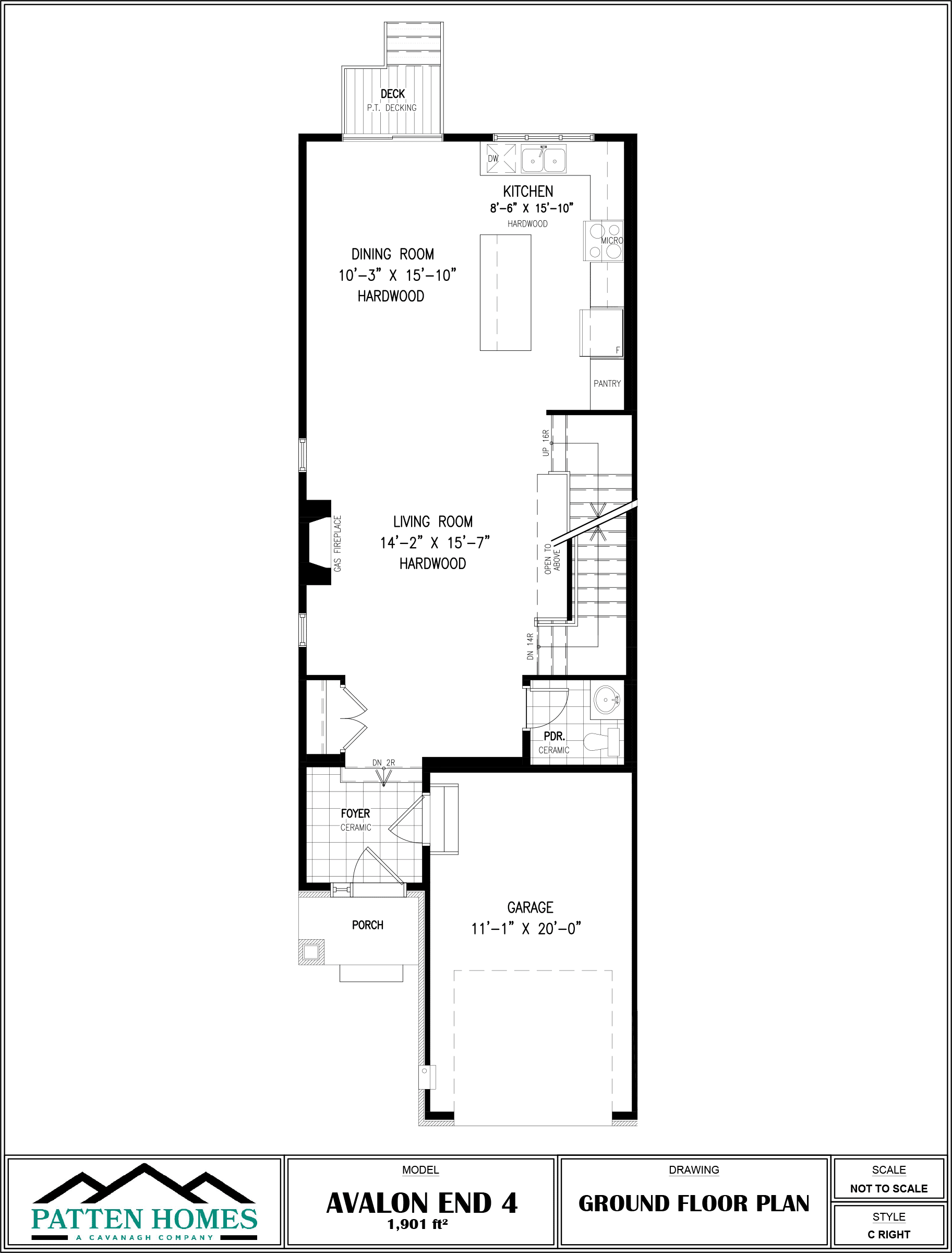
- Elegant open-concept living and dining area
- Open staircase leading to the second floor
- Warm and cozy gas fireplace
- Spacious 6’ x 4’ wood deck
- Large kitchen island with a built-in breakfast bar
- Convenient coat closet located at the entry
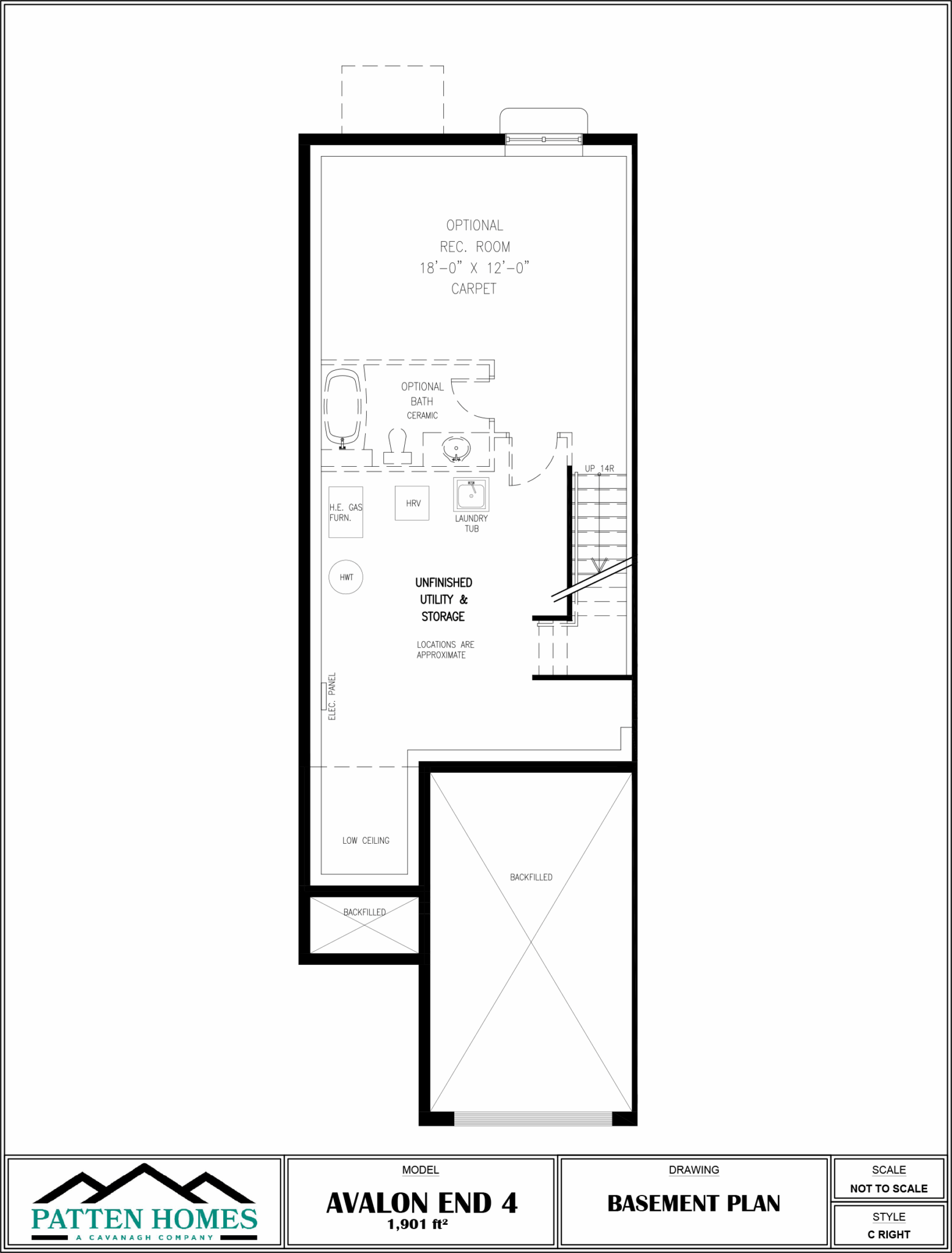
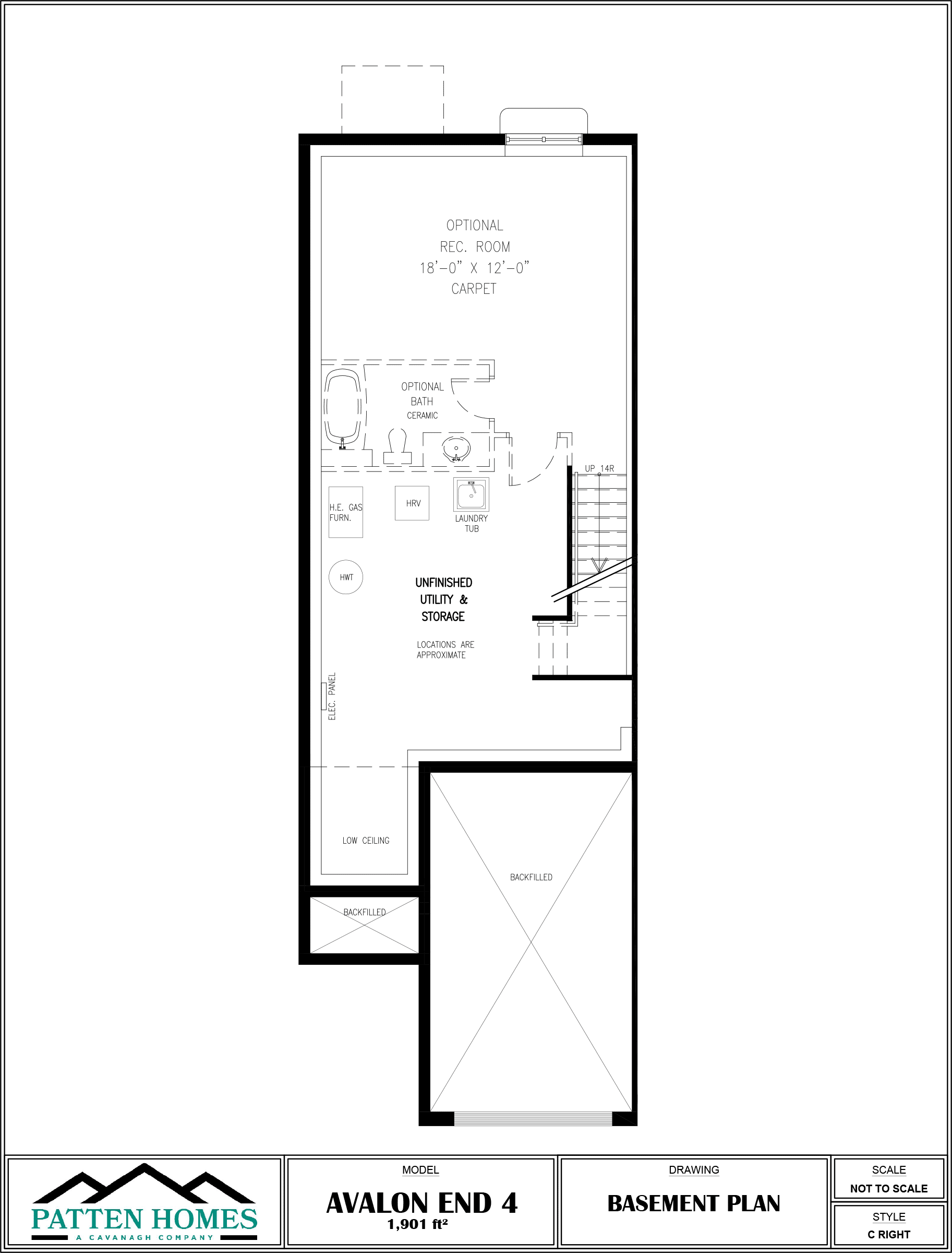
- Optional Finished Basement
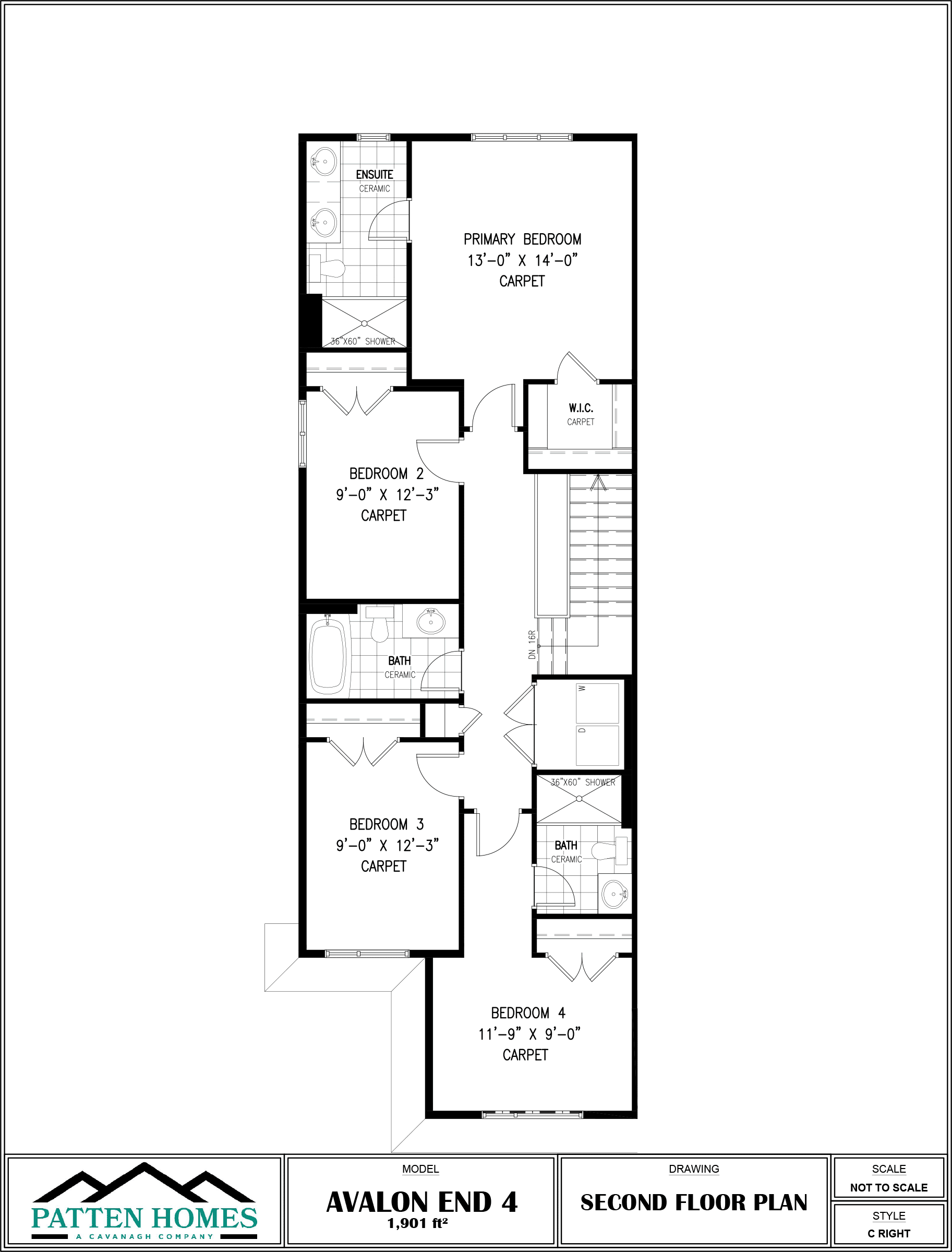
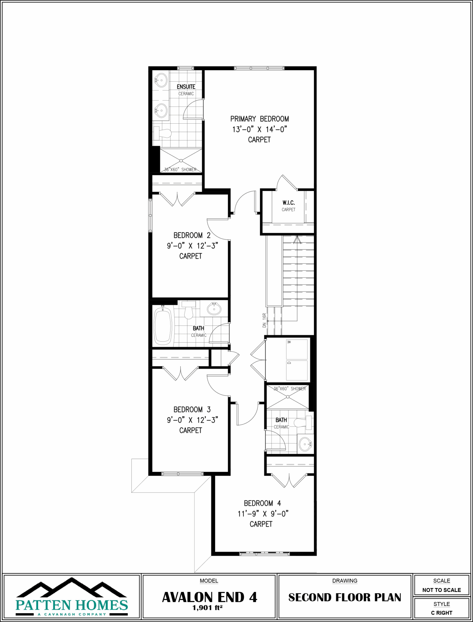
- Guest Suite with Full Bathroom
- Convenient 2nd Floor Laundry
